Loading...

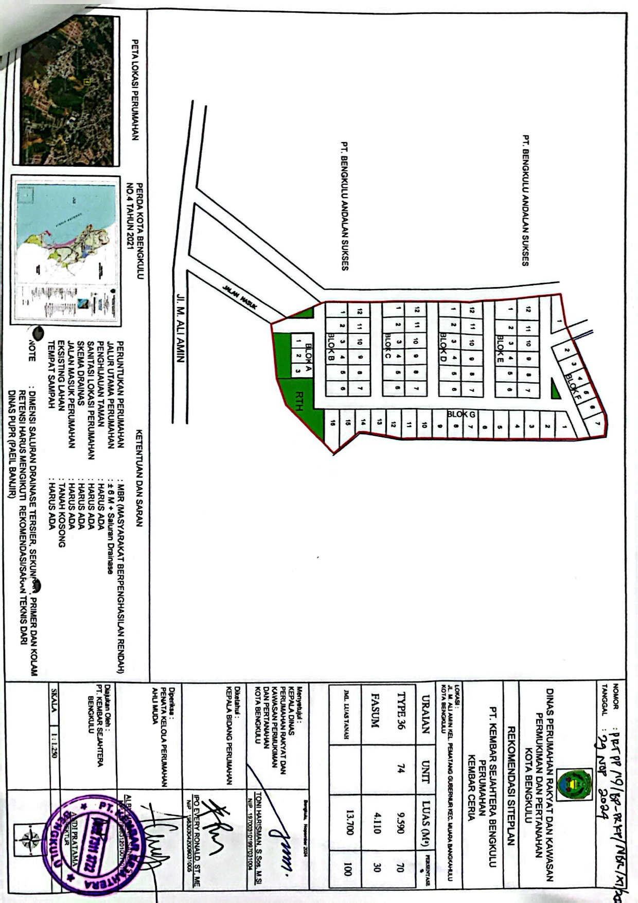
PERUMAHAN

KEMBAR CERIA

Contact

Rp 166.000.000

Jl. M Ali Amin, Pematang Gubernur, Bengkulu City, Bengkulu, Indonesia

Detail Bangunan

Luas Tanah

117

Tipe Rumah

36

Terjual

50

Tersedia

74

Fasilitas Umum

Perumahan ini dilengkapi dengan fasilitas umum seperti jalan lingkungan yang sudah dicor beton selebar 5 meter, drainase terbuka yang tertata di setiap blok, lahan hijau terbuka, serta akses dekat dengan fasilitas kota seperti sekolah, pasar, dan rumah sakit. Lokasinya yang berada di kawasan Pematang Gubernur menjadikannya strategis karena hanya beberapa menit dari kampus Universitas Bengkulu dan pusat kota, memudahkan mobilitas penghuni sehari-hari.

Detail Bangunan

Rumah di Perumahan Kembar Ceria dibangun dengan tipe standar subsidi berukuran ±36 m² di atas lahan sekitar 117 m², memiliki dua kamar tidur, satu kamar mandi, ruang tamu, serta dapur terbuka. Struktur bangunan menggunakan dinding bata merah diplester rapi dan dicat, atap menggunakan seng spandek rangka baja ringan, serta lantai keramik berukuran 40×40 cm. Jendela dan pintu depan menggunakan kayu solid dan alumunium, serta sudah dilengkapi jaringan listrik PLN dan saluran air bersih.
Bank
Simulasi KPR
Rp
% Rp
Uang Muka
Jangka Waktu KPR
Tahun
Maps
Siteplan